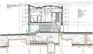
Schnitt Museumsbau Verfasst von Team MiQua am 27. Juni 201727. Juni 2017 Veröffentlicht von Team MiQua Zeige alle Beiträge von Team MiQua